當前位置: 首頁 > 企業動態推薦新聞RECOMMENDED NEWS
-
深圳恒德板業:新型墻體隔墻板材料通過了所有廣東客戶的認可 新型輕質隔墻板一種新型綠色建材,它主要采用石膏粉加上輕質鋼渣再加上一些廢煤渣以及一些回收建筑材料通過高溫消毒再加上7000噸的模壓而成,所生產出來的防火隔墻板可以防止1200度的高溫以及不放射出有毒物質,除此之外它還具備很多性能特點,是新一代建材中的標桿。2017-10-25→ 更多詳細
- · 恒德板業告訴您:使用節能墻體材料的好處有哪些?2017-09-29
- · 恒德板業專業解答輕質復合隔墻板各種常見問題2017-08-23
- · 香港中文大學(深圳)校區全面使用恒德板業隔墻板進行室內外隔墻2017-08-23
- · 深圳恒德輕質隔墻板,滿足了現代建筑環境的要求2017-08-17
- · 深圳恒德教您如何判斷輕質隔墻板的隔音效果2017-08-16
- · 輕質隔墻板之墻板和隔墻板的中國歷史來由2017-08-14
- · 恒德板業輕質隔墻板幫你解決裝修大問題2017-08-14
簽約動態CONTRACT DYNAMIC
行業新聞INDUSTRY NEWS

-
輕質隔墻板與發泡輕質隔墻板都是應用與各種建筑的非承重隔墻的新型建筑材料。那么這兩者又有什么區別呢? 輕質隔墻板是一種新型節能墻材料,它是一種外型像空心樓板一樣的墻材,但是它兩邊有公母隼槽,安裝時只需將板材立起,公、母隼涂上少量嵌縫砂漿后對拼裝起來即可。它是由無害化磷石膏、輕質鋼渣、粉煤灰等多種工業廢渣組成,經變頻蒸汽加壓養護而成。2017-04-28

-
輕質隔墻板安裝工程中存在的四大問題及恒德板業的解決方法 我司即長期致力于輕質隔墻板安裝方面的研究,經過20年努力,上述問題,特別是墻體裂縫這個老大難問題,已得到較好解決。具體措施是:2017-04-25

-
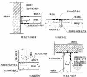
恒德板業輕質隔墻板安裝施工方案,廣東隔墻板安裝工程20年安裝經驗. 1.1《建筑輕質條板隔墻技術規程 》JGJ/T 157-2004 1.2《輕質條板內隔墻》03 -J113 1.3《建筑隔墻用保溫條板》GB/T23450-20092017-04-25

-
深圳恒德板業廣東省最好的輕質復合墻板生產、銷售和安裝公司 深圳恒德建筑科技有限公司坐落于素有“創新之城”的美譽,深圳恒德建筑科技有限公司在廣東深圳這片土地上生根發芽,通過多年的努力獲得了眾多的廣東省內的客戶朋友和全國各地的代理商的信任,恒德板業在廣東省境內廣州、深圳、惠州設有分公司,以生產輕質隔墻板為主導,集生產、銷售、安裝為一體的綜合性企業。2017-04-17

-
深圳恒德板業輕質復合隔墻板產品通過ISO 9001:2015認定證書 深圳恒德建筑科技有限公司是一家集研發、生產于一體的綜合性新型建材科技有限公司。公司致力于研制、生產新型墻材及墻材機械設備、集成房屋等產品應用與推廣; 公司專業從事研發、設計、生產、銷售和承接安裝建筑新型墻體、輕質墻體體系產品及提供新型墻體解決方案的企業,參加國家《輕質墻板標準》的編寫;被國家授予《中國建材自主創新-新材料孵化基地》;并且公司在廣州、深圳、惠州設有分公司。2017-04-17

-
近日,記者來到位于深圳羅湖區的深圳恒德建筑科技有限公司,深圳恒德建筑科技有限公司負責的一個現場工地的鋼結構框架和藍色頂棚已經搭建完成,工地上并沒有常見的大片腳手架和成堆的混凝土。記者看到,正在搭建墻體的六七名工人沒有用小磚塊砌墻,而是將一塊塊預制好的輕質復合隔墻板像搭積木一樣裝配起來,每一塊隔墻板長3米、寬0.6米,已經裝配好的廠房墻體線條平直、表面平整。現場還堆放著不少待用隔墻板,一名工人正根據要求對板材進行切割。“這里是公司接到的一個新建的廠房工程,用到的所有墻材都是恒德板業生產的輕質隔墻板。2017-04-12

阿里巴巴誠信通商家
恒德淘寶專賣店
恒德官方微博
















恒德榮譽資質














恒德板業微信公眾號
恒德板業手機網站
